Projet livré : une salle à manger/cuisine pour un appartement haussmannien, 52 m² à Paris

Surface :
52 m²
Localisation :
Paris
Typologie :
Rénovation complète
Budget Travaux :
60 k€

Le défi : rénover les pièces d’eau d’un appartement haussmannien en tenant compte des contraintes structurelles

Lolani vient d’acquérir un appartement situé dans le 3ᵉ arrondissement de Paris qu’elle souhaite entièrement rénover. Si le logement possède un réel charme, il est en mauvais état : parquet et peintures défraîchis, salle d’eau vétuste et cuisine peu lumineuse. La présence de murs porteurs limite par ailleurs les possibilités de réaménagement. Son souhait : repenser la cuisine et la salle de bain pour créer des espaces plus fonctionnels et conviviaux, tout en conservant les éléments de caractère de l’appartement, tels que moulures, corniches et miroir d’époque.

 

Pour l’accompagner dans ce projet, Lolani se tourne vers Sloft Projets, qui la met en relation avec Studio Dallas. Les architectes proposent un projet sur mesure, compatible à la fois avec ses inspirations et son budget, centré sur une cuisine dinatoire intégrée au séjour pour un espace de vie plus fluide et convivial, et une salle de bain entièrement repensée et optimisée. Le reste de l’appartement, quant à lui, conserve sa configuration initiale.

 

Aujourd’hui, l’appartement de Lolani est méconnaissable. L’alcôve du salon a été transformée en bibliothèque sur mesure, lui apportant enfin une véritable fonction, tandis que les moulures et le parquet en point de Hongrie ont été soigneusement restaurés. L’aménagement intérieur a été pensé pour offrir davantage de fluidité, de confort et de fonctionnalité, tout en mettant en valeur le caractère unique du logement.

 

 

Avant c’était comme ça :

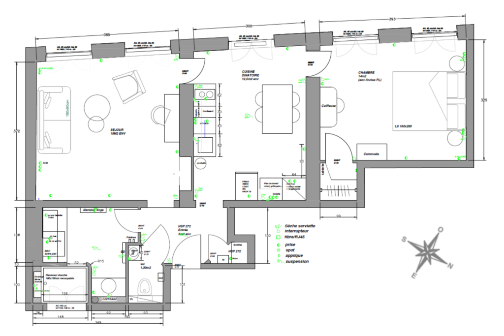
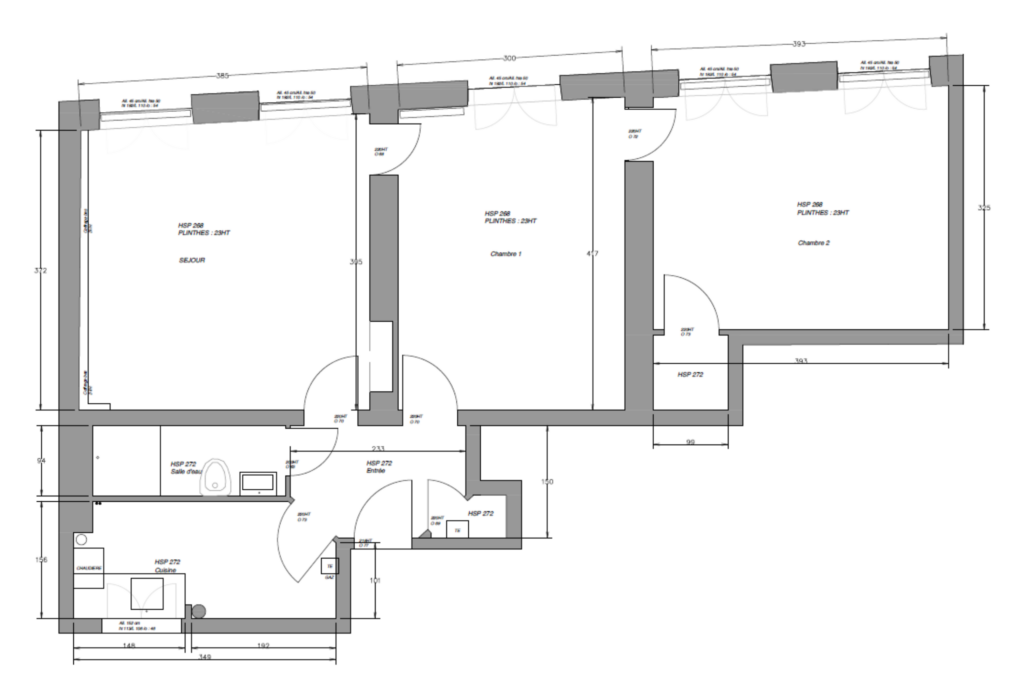
La configuration intérieure était contrainte par la présence de trois murs porteurs, ce qui limitait les possibilités d’aménagement. La cuisine, située sur cour, manquait de lumière, tandis que la salle d’eau était vétuste et équipée d’un WC Sanibroyeur, nécessitant une refonte complète pour répondre aux besoins actuels.

 

Les peintures étaient défraîchies et le parquet en point de Hongrie montrait des traces d’usure.

 

Entre le miroir et la porte, une alcôve du salon restait sous-exploitée et attendait d’être mise en valeur.

 

 

Ce que nous avons fait :

La cuisine a été déplacée au centre de l’appartement et est désormais ouverte sur la salle à manger.

 

Nous avons opté pour un plan de travail et un évier blancs, associés à des meubles en noyer qui apportent du caractère à la pièce. La crédence vert d’eau texturée reflète la lumière et dynamise l’ensemble, tout en offrant une ambiance chaleureuse et contemporaine.

 

Nous avons habillé un second pan de mur d’une colonne et de divers rangements en noyer.

 

Nous avons disposé la cuisine le long des murs afin de libérer l’espace central, dédié à la table à manger avec une banquette en tissu, créant ainsi un coin repas convivial et fonctionnel.

 

Nous avons choisi d’installer des portes à « cadrans » à l’ancienne, agrémentées de poignées en porcelaine blanche, pour conserver le charme intemporel de l’appartement tout en apportant une touche élégante et raffinée.

 

Les éléments anciens, tels que le parquet en point de Hongrie, les moulures et les corniches, ont été restaurés.

 

Nous avons peint l’entrée, du sol au plafond, dans une teinte bleu sombre, donnant la sensation d’une boîte.

 

Nous avons mis en valeur l’alcôve du salon en créant une bibliothèque sur mesure, soulignée par une teinte orange vitaminée aux accents seventies. Une découpe en biais vient créer un contraste subtil avec les angles arrondis de cette niche, lui apportant dynamisme et caractère.

 

Nous avons transformé l’ancienne cuisine en une nouvelle salle d’eau, où tous les éléments techniques ont été savamment dissimulés et intégrés. Un meuble suspendu en bois supporte une vasque ronde.

 

La douche a été habillée d’un carrelage effet zellige bleu grisé de 10 × 10 cm. De petits carreaux d’inspiration orientale soulignent la niche intégrée. Une robinetterie en laiton complète l’ensemble, apportant chaleur et élégance à cet espace lumineux.

 

De nombreux rangements ont été créés dans la salle d’eau.

 

Nous avons aménagé des sanitaires indépendants, peints en terracotta, à côté de la salle d’eau.

 

La chambre a été aménagée en jouant sur des textures chaleureuses et des couleurs douces, créant une atmosphère qui invite au repos et à la détente.

 

Photographies : Maude Artarit

Texte : Coline Jacquet

Je présente mon projet