Projet en cours : un duplex optimisé, 68 m² à Paris
Le défi : optimiser la pièce à vivre et agrandir les chambres
Il y a quelques mois, Héloïse et Cyril nous ont contactés pour que nous les accompagnions dans la rénovation du duplex de 68 m² qu’ils étaient en train d’acquérir à Paris 11, avec le projet d’y fonder une famille. Nous lui avons recommandé l’Atelier Philibert compatible tant avec leurs inspirations que leur budget.
Aujourd’hui, on vous présente ce que nous allons faire !
Avant, c’était comme ça :

Un duplex présentant de grandes fenêtres de type atelier en rez-de-chaussée donnant sur une cour végétalisée.

Le salon, la cuisine, le bureau et la salle à manger prennent place dans une seule et même pièce, complètement décloisonnée, présentant de beaux volumes.

Les différents usages demandent à être mieux définis pour faciliter la lecture de l’espace.

Classique, la cuisine aurait besoin d’un coup de jeune.

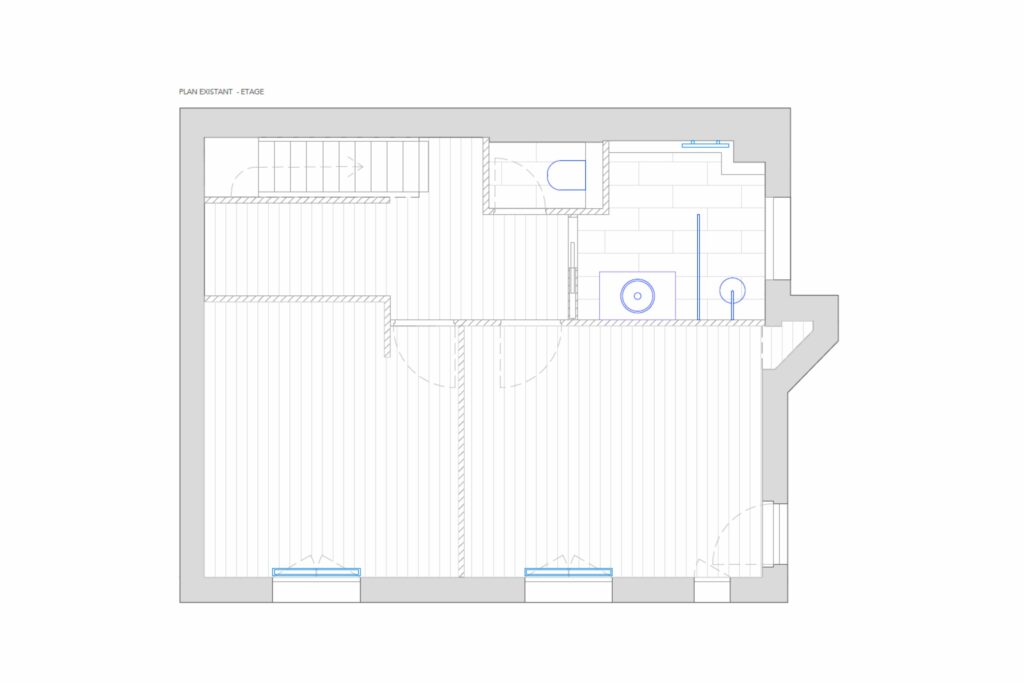
Le rez-de-chaussée est lumineux et présente une belle hauteur sous plafond. L’appartement présente une ambiance neutre avec ses murs blancs. L’espace sous l’escalier n’est pas optimisé.

Le plan de l’étage n’est pas optimisé et présente des zones résiduelles difficiles à aménager. Point positif : le duplex ne présente aucun mur porteur intérieur pouvant entraver la rénovation.

Le palier fait perdre beaucoup d’espace à l’étage.

L’appartement manque de solutions de rangement.

La salle d’eau, bien que fonctionnelle, n’est pas au goût de ses nouveaux propriétaires.
Ce que nous faisons :

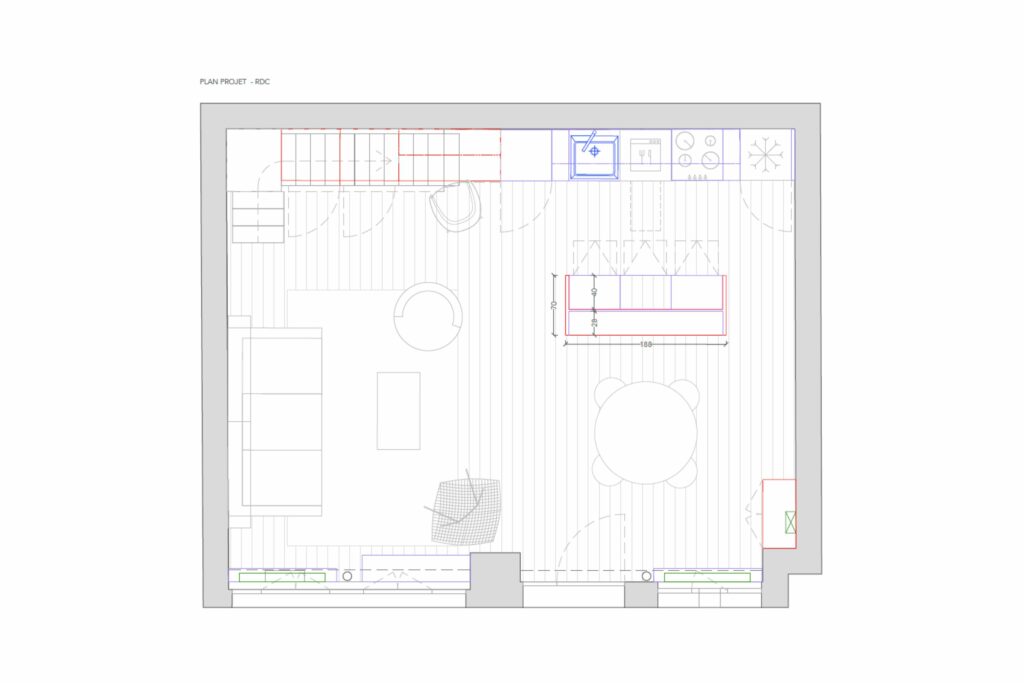
la cuisine est déplacée sur le mur du fond du duplex. Un ilot central permet de séparer visuellement cuisine et salle à manger. Le bureau prend place sous l’escalier.

La cage d’escalier est peinte en bordeaux pour séquencer l’espace. Des rangements sont aménagés sous les premières marches de l’escalier, tandis que le bureau, couronné d’étagères, s’insère dans le prolongement du linéaire de la cuisine. Des portes miroirs habillent les placards suspendus de la cuisine et réfléchissent la lumière naturelle.

Un placard est créé dans l’entrée pour ranger les chaussures et manteaux, mais également pour dissimuler le compteur électrique. Une table tulipe est installée face à l’entrée. L’ancien carrelage de la cuisine est supprimé et remplacé par du parquet qui unifie l’espace.

Des tablettes sont installées sur les radiateurs, tandis qu’une bibliothèque prend place au-dessus du canapé. Les oeuvres d’art et pièces de design du couple sont mises en valeur.

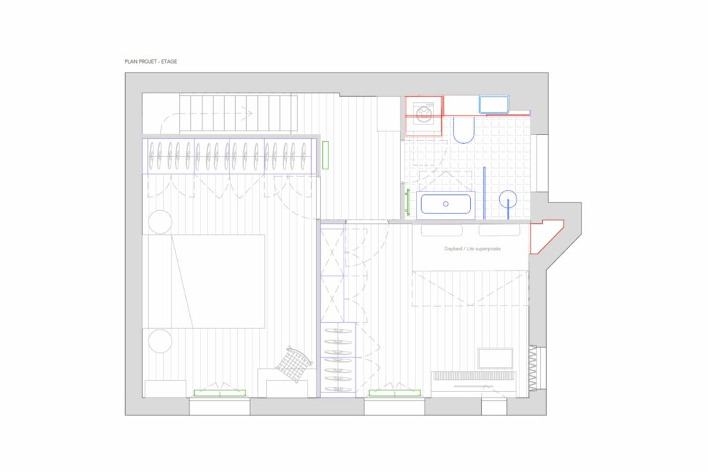
A l’étage la chambre parentale est agrandie en récupérant l’espace perdu du palier. Les toilettes sont intégrés à la salle d’eau.

L’agrandissement de la chambre parentale permet d’aménager un dressing sur le mur du fond. Deux portes en miroir décuplent la sensation d’espace.

Un dressing est également créé dans la chambre d’enfant qui se pare de nouvelles couleurs.

La machine à laver et les toilettes sont intégrés dans la salle d’eau qui comptent désormais de nombreux placards de rangement. Un radiateur électrique est installé.