Projet en cours : bois croisés dans 45 m² à Paris

Surface :
41 m²
Localisation :
Paris
Typologie :
Rénovation complète

Le défi : rénover et récupérer les combles pour agrandir le séjour

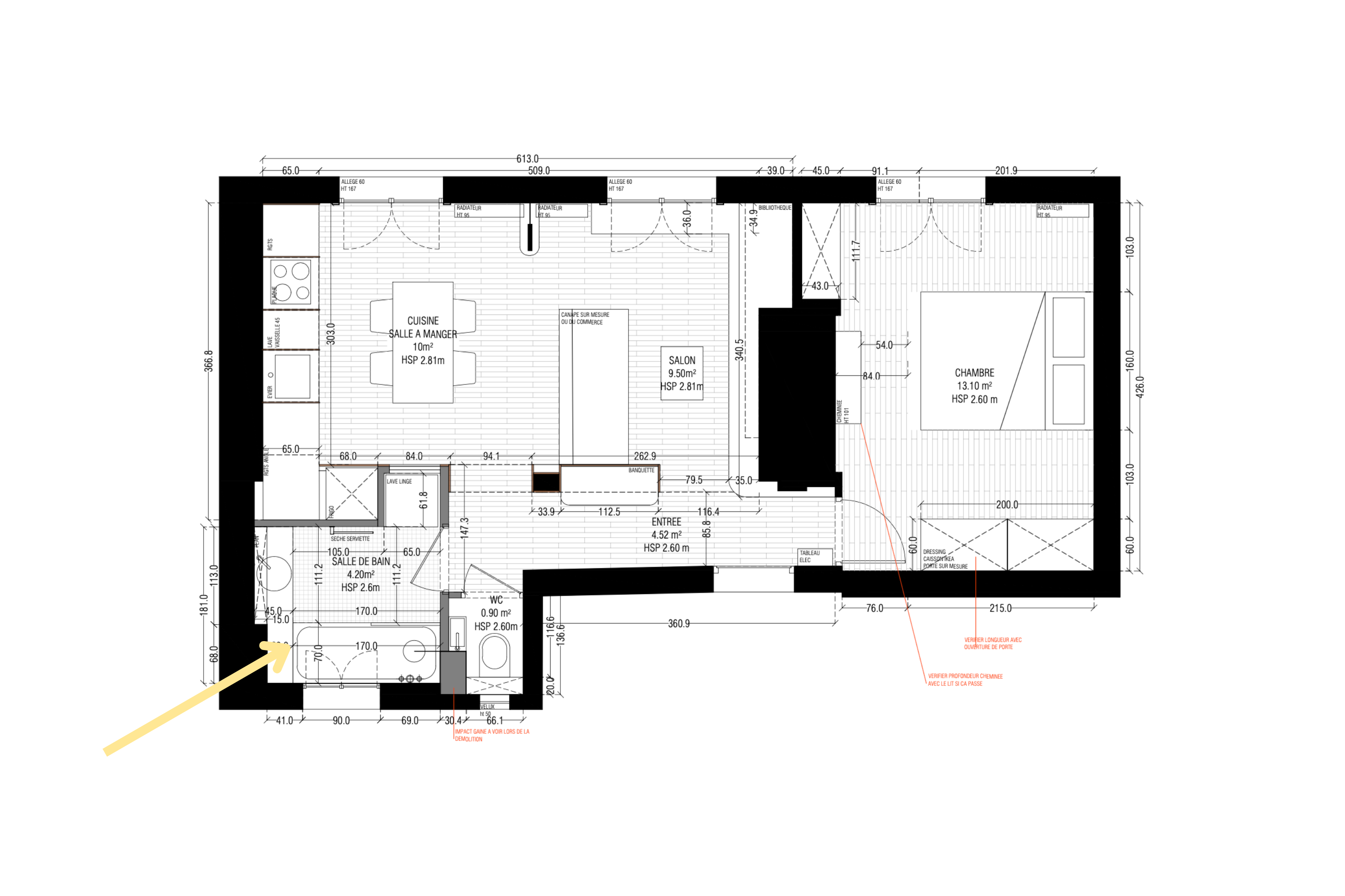
Il y a quelques mois, Honorine nous a contactés pour que nous l’accompagnions dans la rénovation complète de son appartement de 41 m² à Paris.

Aujourd’hui, on vous présente ce que nous allons faire.

Hier c’était comme ça :

Un appartement au dernier étage d’un immeuble parisien…

 

… qui avait besoin de prendre un nouveau départ !

Un plan très cloisonné.

Et juste au-dessus…

… des combles non exploités !

Ce que nous faisons :

Décloisonner et redistribuer les espaces !

Donner de la hauteur à la pièce de vie grâce aux combles. En prime, une isolation revue.

Des poutres d’origine qui rencontrent un contreplaqué d’okoumé teinté.

Un grand module bibliothèque qui rythme les zones, dans un élégant entremêlement avec la charpente.

Une structure qui distribue néanmoins l’espace avec le maintien d’un couloir vers la chambre.

Derrière le conduit de cheminée de l’immeuble, un emplacement idéal pour la chambre.

Une chambre qui conserve d’ailleurs sa cheminée historique en marbre.

Intégration d’une tête de lit et de rangements sur mesure.

Utilisation de panneaux de viroc blanc, mélange de bois et ciment.

Une toute nouvelle salle de bain…

… où on retrouve l’okoumé teinté et une confortable baignoire.

Hâte de vous montrer le résultat !